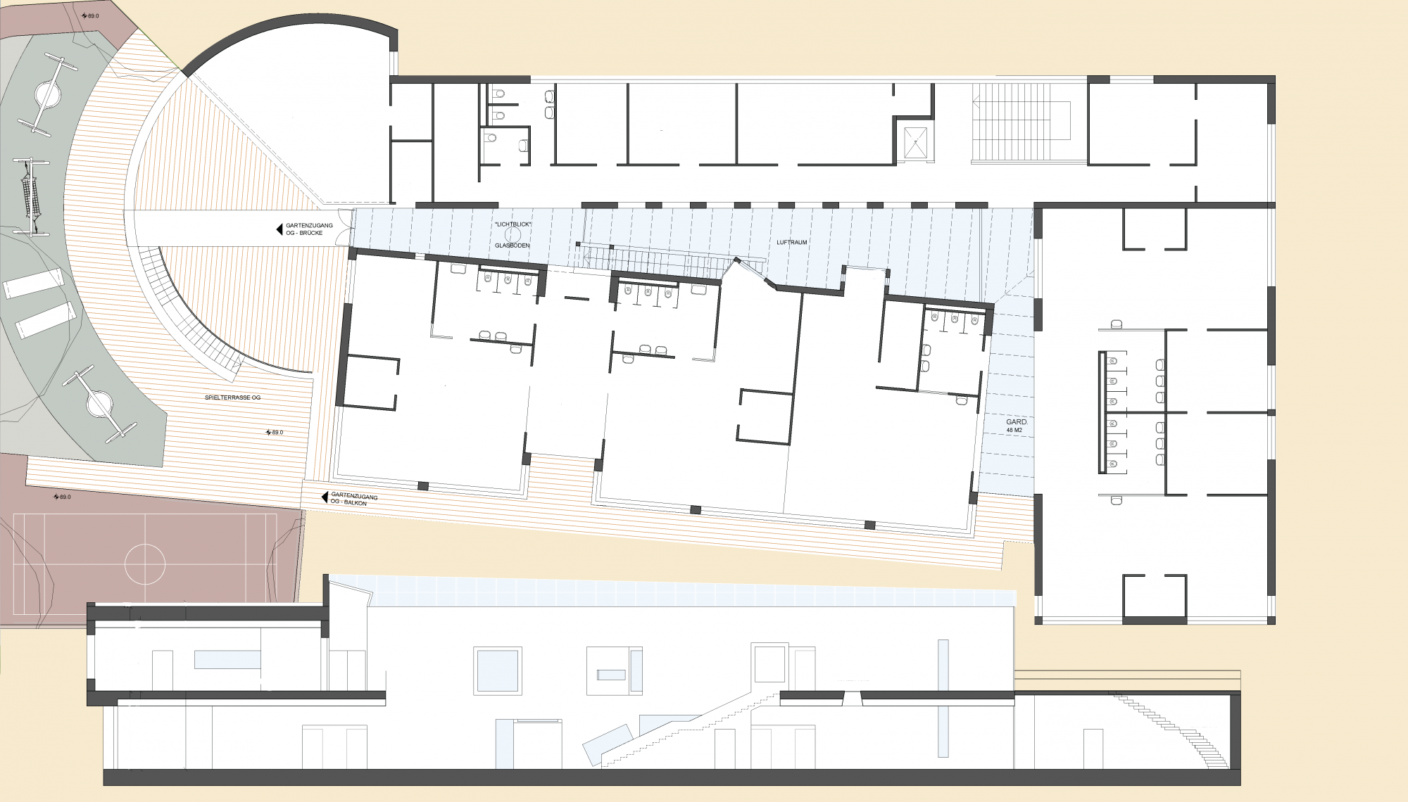
EXPERTENVERFAHREN ZUR ERRICHTUNG EINES KINDERGARTENS
1230 Wien
2008
TEXTFOTOSPLÄNE